BAYSIDE
BAYSIDE
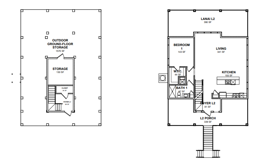
Description
- 2,218 Sq Ft
- 4 Bedrooms
- 3 Bathrooms
- Customizable Garage or Under Truss Parking Option
- All Block Construction with Plywood Roof Decking
- Home Building to Sustain 160mph Winds
- Spray Foam Insulation
- All Low E Impact Resistant Windows & Glass Doors
- 9′-4″ Ceilings
- 6″ Base Mouldings
- 4″ Door Casings
- Garage Doors with Electric Opener & 2 Remotes
- 50 year Roof Shingles
- 16 SEER High Efficiency HVAC with Heat Pump & Programmable Thermostat
- Tankless Hot Water Heater
- Recessed Light Fixtures Throughout with Ceiling Fans in All Bedrooms
- Full Wall Tile in All Wet Areas
- Soft Close Plywood Cabinets with Cambria Counter Tops in Kitchen & Baths
- Optional Pool Packages
- Stainless Steel Appliance Package
- Complete Landscaping Package with Automatic Sprinklers & Electric Timer
- Solid Marble Windowsills
- All Decora Light Switches & Receptacles
- Brick Paver Driveway & Lanai
- 2-10 Home Builder’s Warranty
Address
-
Country United States
Overview
- Property ID 858
- Price Price on call
- Rooms 4
- Bedrooms 3
- Bathrooms 3
- Size 2,218 SqFt
- Den Yes

